Passer au contenu principal

Paramètres des cookies

Nous utilisons des cookies pour assurer les fonctionnalités de base du site Web et pour améliorer votre expérience en ligne. Vous pouvez configurer et accepter l'utilisation des cookies et modifier vos options de consentement à tout moment.

Essentiels

Préférences

Analyses et statistiques

Marketing

Commencer à ajouter des projets. Sélectionnez au maximum 3 projets que vous souhaitez voir se réaliser et votez selon vos préférences pour définir le budget.

0 / 3 Assigné 3 Budget
Assigné 0 / 3 3 Budget

Nombre maximum de projets dépassé

Ce projet dépasse le nombre maximum de projets et ne peut pas être ajouté. Si vous le souhaitez, vous pouvez supprimer un projet que vous avez déjà sélectionné puis voter de nouveau selon vos préférences.

Confirmez votre vote

Budget

Voici les projets que vous avez choisis pour le budget.

Vote des projets

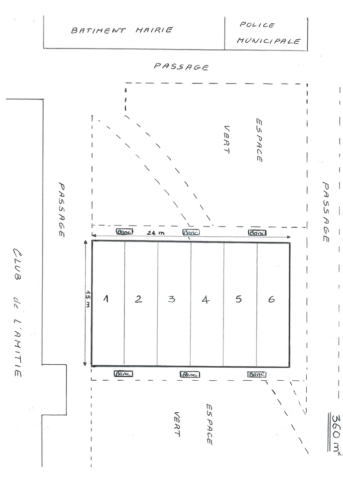
Création d'un terrain de Pétanque convivial et gratuit dans le parc Corbeil proposé par Colette Sourdoulaud et Joëlle Martinez

Le projet consiste à aménager des terrains de pétanque ouverts à tous les habitants afin d'offrir un lieu de loisir simple convivial et intergénérationnel. (Voir plan )
La pétanque est une activité de plein d'air, gratuite, accessible et praticable toute l'année.
Le terrain sera implanté devant le club de l'amitié (dont les adhérents jouent actuellement sur le passage communal) cet emplacement sécurisé , calme et à proximité d'espaces publics
favorisera le dynamisme du centre bourg.

Valider