Skip to main content

Cookie settings

We use cookies to ensure the basic functionalities of the website and to enhance your online experience. You can configure and accept the use of the cookies, and modify your consent options, at any time.

Essential

Preferences

Analytics and statistics

Marketing

Start adding projects. Select up to 3 projects you want and vote according to your preferences to define the budget.

0 / 3 Assigned 3 Budget
Assigned 0 / 3 3 Budget

Maximum projects exceeded

This project exceeds the maximum number of projects and cannot be added. If you want, you can delete a project you have already selected, in order to be able to vote again according to your preferences.

Confirm vote

Budget

These are the projects you have chosen to be part of the budget.

Budgets

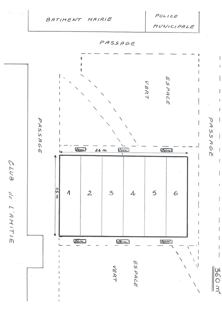
Création d'un terrain de Pétanque convivial et gratuit dans le parc Corbeil proposé par Colette Sourdoulaud et Joëlle Martinez

Le projet consiste à aménager des terrains de pétanque ouverts à tous les habitants afin d'offrir un lieu de loisir simple convivial et intergénérationnel. (Voir plan )
La pétanque est une activité de plein d'air, gratuite, accessible et praticable toute l'année.
Le terrain sera implanté devant le club de l'amitié (dont les adhérents jouent actuellement sur le passage communal) cet emplacement sécurisé , calme et à proximité d'espaces publics
favorisera le dynamisme du centre bourg.

Confirm